Forester Square: A Neotraditional Neighborhood
Auburn Hills, Michigan
In 1998, the City of Auburn Hills began the planning process to transform the rebirth of Auburn Heights into a “village”. This planning process culminated in the approval by the City of a Neighborhood Master Plan March of 1999. Following the approval of the Neighborhood Master Plan the City took firm steps toward it’s implementation by planning for significant infrastructure improvements in the village center and a new 24 acre community park. These public sector investments set the stage for Forester Square.
Based on the City’s actions to implement their Master Plan, Biltmore aggressively assembled 42 individual, contiguous lots containing over 37 existing home into a unified tract of approximately 49.33 acres. This enabled Biltmore to pursue a comprehensive redevelopment of the area under a Planned Development approach, which was called for in the City’s Master Plan. As part of the development process, Biltmore will demolish all existing homes on the site as well as remove all existing infrastructure.
The Concept Plan for Forester Square represents the first significant step by the private sector to help implement the City’s plan. The goal of Forester Square was to make a significant and lasting contribution to the implementation of the Neighborhood Master Plan. The Forester Square Concept Plan was prepared through a cooperative partnering process among interested citizens of Auburn Hills, City Officials, Biltmore, the planning and design team (Looney Ricks Kiss and Barton Associates). The process ranged from numerous meetings with City officials, to a charrette that allowed all parties to design the plan as a team.
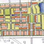
Forester Square is planned as a traditional residential neighborhood with its townhomes and single-family homes offering a diverse range of housing types that serve the City’s changing demographics with regard to household size, family composition, age and lifestyle. Planned using timeless principles of community design and architecture, Forester Square is geared to people who yearn for convenience and a sense of community and in their daily lives. The residents of Forester Square will have the ability to walk or bike to visit their neighbors, shop at nearby stores, utilize local services and reach recreational facilities, wilderness trails and the nearby City park. Traditional architectural styles vary throughout Forester Square, including Italianate, English Colonial, Victorian, Greek Revival, Tudor, and “Seyburn” style, a unique architectural style designed from a palette of forms, details, colors and materials found in the City’s municipal complex and named after Wesson Seyburn who originally owned the estate at that location.
The centerpiece of the development is Forester Square itself. The square is situated midway along a formal east-west boulevard which provides highly identifiable access to the City park. This boulevard has been designed as a formal axis that will allow the public to easily identify and access the park from Adams Road. The square as planned is to serve as both a visual focal point and social gathering place for residents of the neighborhood, guests and all citizens of Auburn Hills.
The first phase of land development improvements have been completed and home construction is under way.
Services Provided by Biltmore
- Master developer and builder of the entire development
Scope
- 49.33 Acres
- 17 Dwelling Units per Acre
- 833 Total Units
- 730 Townhomes, Flats and Carriage Homes
- 103 Detached Single-Family Homes













